呼吸閥列表
- 阻火呼吸閥
- 保溫呼吸閥
- 帶接管呼吸閥
- 全天候呼吸閥
推薦產品
- 防爆阻火呼吸閥
- 石油儲罐呼吸閥
- 雙向全天候阻火呼吸閥
- 帶吸入接管阻火呼吸閥
- 帶呼出接管阻火呼吸閥
- 帶雙接管阻火呼吸閥
- 防火呼吸閥
呼吸閥知識
- 呼吸閥和安全閥的區別
| 產品信息 | |
| 產品型號:HX4;HXF4 | 產品壓力:0.6Mpa-1.6Mpa |
| 產品口徑:DN50-DN300 | 產品材質:碳鋼 不銹鋼 |
021-5187 5832 |
tooezg@126.com |
資料下載 |
價格表 |
| [ 下一個產品 ] | |
美國圖爾閥門辦事處-上海圖爾流體技術有限公司提供【出接管阻火呼吸閥】標準、圖紙、原理、參數、認證、說明書。質量可靠,價格合理,售后優質。我們擁有專業的生產技術圖紙和完整的技術服務方案,為用戶提供一站式的系統解決方案。
帶呼出接管阻火呼吸閥概述
HX4帶呼出接管呼吸閥,HXF4帶呼出接管阻火呼吸閥是裝在室內固定儲罐頂上的接管呼吸作用的閥門,接管呼吸閥用在儲罐蒸汽需要收集時,壓盤的特殊設計使得儲罐在不"呼吸時",能夠消除罐內空氣的進入和蒸汽的溢出。由此減少產品的蒸發損失并保護儲罐的安全。溢出的蒸汽通過連接的法蘭管道,排到特定的地方,這大大提升了防火安全性。帶呼出接管呼吸閥適用于儲存閃點低于28℃的甲類油品和閃點低于60℃的乙類油品,如汽油、苯、煤油、輕柴、厚油等油品及性質相同的化工產品儲罐。HXF4帶呼出接管阻火呼吸閥是適用于需要回收的呼出氣體儲罐,如:呼出氣體對環境有污柒需進行回收再利用的油氣,另呼出氣體介質比較珍貴需要在管線中循環使用。
![]() |
![]() |
![]() |
帶呼出接管阻火呼吸閥參數
| 公稱通徑:DN25-DN350 | 公稱壓力:0.6Mpa-1.6Mpa | |
| 適用溫度:-30℃~60℃ | 連接形式:法蘭連接 | |
| 閥體材質:碳鋼、不銹鋼 | 適用介質:汽油、煤油、柴油等其它石化化工物料 | |
| 閥盤材料:不銹鋼、鋁合金、PTFE聚四氟乙烯 | 阻火層:不銹鋼 | |
| 密封座:PTFE聚四氟乙烯 | 制造標準:GB5908-86;SY7511-87 | |
| 檢驗標準:SY/T0511《石油儲罐呼吸閥》;API2000 | 法蘭標準:HG20592-97;ANSI B16.5;GB/T 9113 |
帶呼出接管阻火呼吸閥操作壓力
![]() |
![]() |
|
等級
|
A
|
B
|
C
|
D
|
|
呼出壓力
|
+355Pa |
+980Pa
(100mmH2O) |
+1765Pa
(180mmH2O) |
+4KPa(或由用戶定)
|
|
吸入壓力
|
-295Pa
(30mmH2O) |
-295Pa
(30mmH2O) |
-295Pa
(30mmH2O) |
-0.5KPa(或由用戶定)
|
呼吸閥由壓力閥和真空閥組成,安裝于貨油艙透氣管上,能隨貨油艙內油氣正負壓變化而自動啟閉,使貨油艙內外氣壓差保持在允許值范圍內。當罐內介質的壓力在呼吸閥的控制操作壓力范圍之內時,呼吸閥不工作,保持油罐的密閉性;當往罐內補充介質,使罐內上部氣體空間的壓力升高,到呼吸閥的操作正壓時,壓力閥被頂開,氣體從呼吸閥呼出口逸出,使罐內壓力不在繼續增高;罐外的大氣將頂開呼吸閥的負壓閥盤。
帶呼出接管阻火呼吸閥通氣量和泄漏量
|
代號
|
DN
|
50
|
80
|
100
|
150
|
200
|
250
|
|
壓力等級Pa
|
通氣量m3/h
|
||||||
|
A
|
+335
|
25
|
60
|
90
|
190
|
340
|
550
|
|
-295
|
20
|
50
|
75
|
160
|
280
|
450
|
|
|
B
|
+980
|
30
|
70
|
100
|
200
|
380
|
600
|
|
-295
|
20
|
50
|
75
|
160
|
280
|
450
|
|
|
C
|
+1765
|
40
|
95
|
140
|
280
|
500
|
800
|
|
-295
|
20
|
50
|
75
|
160
|
280
|
450
|
|
|
標準允許泄漏量m3/h
|
≤0.04
|
≤0.4
|
|||||
帶呼出接管阻火呼吸閥通氣量曲線
![]() |
![]() |
| 壓力釋放曲線圖 |
真空吸入曲線圖
|
注:流量圖是在經過權威機構認證和標定的流量試驗裝置上所數據繪制,介質取標立空氣,密度1.29kg/m3,PN=0.1013Mpa。表中值為參考值,具體準確壓降需根據用戶提供數據要求重新計算。
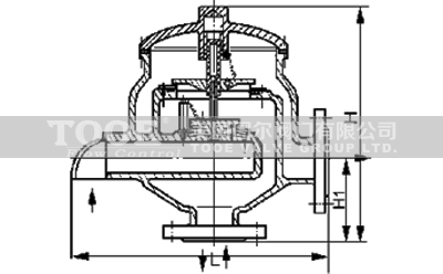
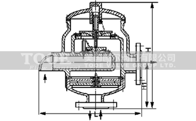
帶呼出接管阻火呼吸閥尺寸
![]() |
![]() |
| 帶呼出接管呼吸閥 |
帶呼出接管阻火呼吸閥
|
|
DN
|
50
|
80
|
100
|
150
|
200
|
250
|
|
L
|
310
|
450
|
450
|
635
|
800
|
950
|
|
H
|
280
|
430
|
430
|
530
|
630
|
740
|
|
H/帶阻火
|
350
|
500
|
500
|
600
|
700
|
820
|
|
H1
|
110
|
180
|
180
|
220
|
260
|
320
|
|
H1/帶阻火
|
180
|
250
|
250
|
290
|
330
|
400
|
聲明及條款:美國圖爾閥門集團有限公司(TOOE VALVE GROUP LTD.)注冊于美國特拉華州丹佛市肯特郡,是一家集設計研發及生產于一體的跨國性閥門企業。在中國,TOOE在上海及浙江亦有授權合作的代工廠。上海圖爾流體技術有限公司作為美國圖爾閥門集團有限公司在中國的正式授權辦事機構,全權代表圖爾閥門集團有限公司在中國各項推廣、銷售、技術支持以及相應的服務工作。且擁有"TOOE"、"圖爾流體"的商標及名稱的使用權。此產品為外協代加工,本網站所刊載的所有圖文信息僅供參考,實物以實際交付為準。上海圖爾流體技術有限公司同時經銷其他進口閥門品牌的"進口帶呼出接管阻火呼吸閥"產品。










021-5187 5832
tooezg@126.com













在線客服
聯系手機


